Upa
UPA on Woodsonsi sarja esimene aastaringseks kasutamiseks loodud elumaja.
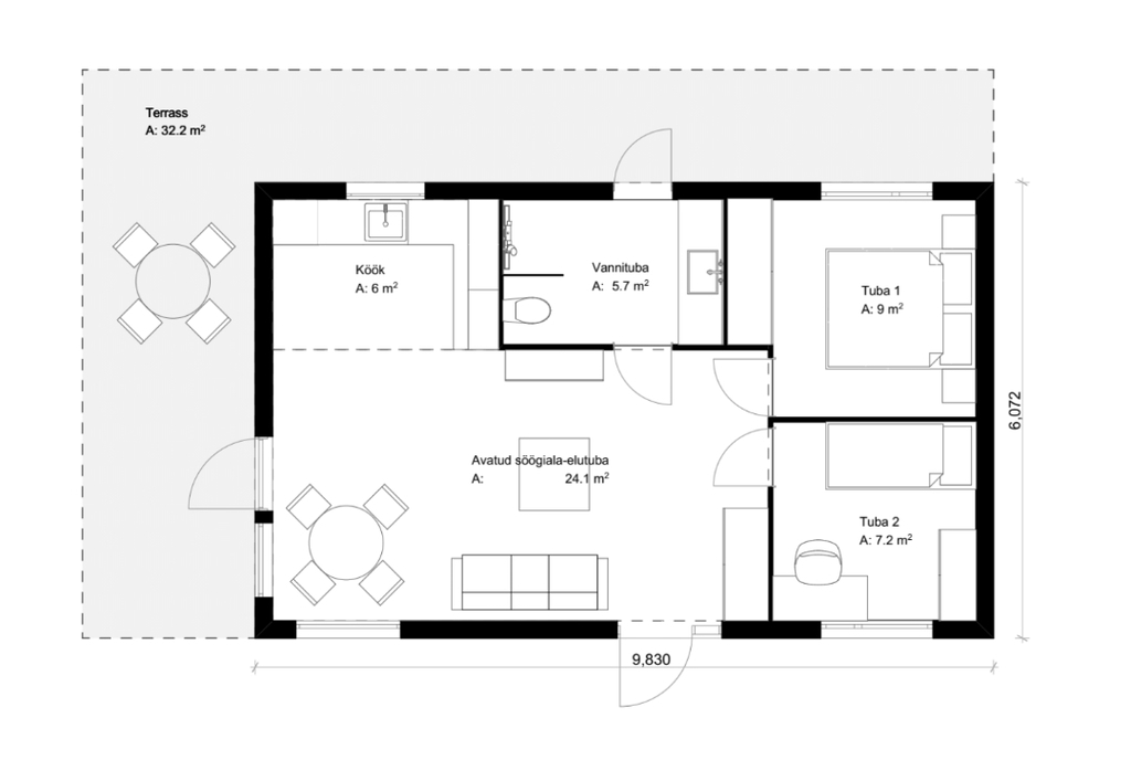
See on praktilise suuruse ja läbimõeldud planeeringuga kodu, mis pakub mugavat elamist väikesele perele. Peaaegu 60 m² suurusel elamispinnal on olemas kõik vajalik igapäevaseks eluks.
Hoone koosneb avatud köögiga elutoast, kahest eraldi magamistoast ning vannitoast koos saunaga. Projekti osana ümbritseb maja ka puidust terrass, mis loob juurde kasutusvõimalusi ja lisaruumi.
Looduslik ja keskkonnasõbralik lahendus
Upa kodu on mõeldud inimesele, kes hindab looduslikke ja keskkonnasäästlikke materjale. Hoone seinad on valmistatud WXP ristkiht-puitpaneelidest, mis on innovatiivne alternatiiv traditsioonilisele puit- ja palkmaja ehitusele.
WXP paneelid on:
valmistatud keemiavabast, looduslikult hingavast massiivpuidust,
pakkudes paremat soojustpidavust ja helipidavust kui palkmaja või CLT-paneel,
stabiilse ja kindla konstruktsiooniga, mis ei kõverdu ega väändu.
Tootmiskvaliteet ja vastupidavus
Woodsonsi ristkiht-puitpaneel (WXP) koosneb profileeritud voodrilaudade kihtidest, mis on naeltega ühendatud ja paigutatud ristkihtidesse. Selline lahendus tagab materjali tugevuse, vastupidavuse ja mõõtmete püsimise ka aja jooksul.
Paneelid on toodetud tööstuslikult ning kontrollitud tootmisprotsesside kaudu on tagatud nende ühtlane kvaliteet. Tänu sellele pakub Upa kodu kindlust ja pikaajalist vastupidavust.
Hoone pindala koos terrassiga: 88 m²
Katusealune pindala: 59 m²
Hoone pikkus x laius: 9,8 x 6,0 m
Lae kõrgus põrandast: 2,3 – 3,16 m
Katuseharja kõrgus maapinnast: 3,46 m
Hoone puidust osade kaal (ilma terrassita): 12 000 kg









