Pärni
Kompaktne ja läbimõeldud kodu väikeperele
- Kvaliteetne põhjamaine puit
- Tugev - seinapaksus 365 mm
- 85 m² suletud netopinda
- Avatud elutuba-köök ja kaks magamistuba
- Lihtne ja kiire paigaldus
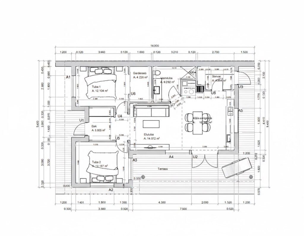
Pärni on kompaktne ja läbimõeldud kodu, mis sobib ideaalselt väiksemale perele või teiseks koduks looduse keskel. Ühepoolse kaldkatusega hoone kõrgemasse ossa on planeeritud avar elutuba koos avatud köögiga, kus suured aknad toovad ruumi rohkelt loomulikku valgust. Samal ajal kaitsevad pikad räästad siseruume liigse päikesesoojuse eest.
Maja planeering on praktiline ja hubane. Elutoale lisaks on majas kaks magamistuba, garderoob ning vannituba, kuhu on võimalik soovi korral lisada ka saun. Läbimõeldud ruumilahendus loob mugava ja avara elukeskkonna ka väiksema pindala juures.
Hoone ümber on kavandatud avar puitterrass, mille kohal olev pikk räästas pakub kaitset nii vihma kui päikese eest. Tänu sellele saab terrassi kasutada mugavalt suure osa aastast.
Pärni maja seinad on valmistatud WXP ristkiht-puitpaneelidest. Tegemist on massiivpuidust konstruktsiooniga, mis on keemiavaba ja looduslikult hingav ning aitab hoida ruumides stabiilset sisekliimat. Seina konstruktsioon koosneb 126 mm WXP paneelist, 150 mm tselluvilla soojustusest, 22 mm tuuletõkkeplaadist ning välisvoodrist. Sellise lahenduse kogu seinapaksus on 365 mm ning arvutuslik soojusläbivus (U-arv) 0,168 W/m²K, mis tagab hea soojapidavuse ja energiatõhususe.
Hoone tarnitakse tehases valmistatud seinaelementidena, mis võimaldab kiiret ja täpset paigaldust.






